- 23/12/2025
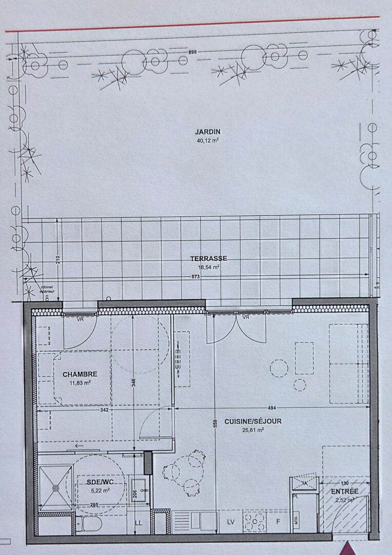
Programme neuf Embrun - T2 - 45.18m2
EMBRUN
185 000 € *
Résidence Élément : Votre Écrin de Nature entre Lac et Montagnes Vivez l'exceptionnel au coeur des Hautes-Alpes ! Découvrez une nouvelle façon de vivre à Embrun, véritable joyau niché aux portes du Parc National des Écrins. La résidence Élément vous offre un cadre de vie idyllique, où l'architecture contemporaine s'unit harmonieusement à la noblesse du style local. Élégance, Confort et Intimité Composée de seulement deux bâtiments à taille humaine, cette résidence de grand standing propose 42 appartements exclusifs, allant du T2 au T4 en attique. * En rez-de-chaussée : Profitez de votre propre jardin privatif, véritable havre de paix pour vos moments de détente. * En étage : De larges baies vitrées inondent les intérieurs de lumière et s'ouvrent sur des vues imprenables sur les sommets environnants. Des Prestations Haut de Gamme et Durables Parce que votre confort ne doit faire aucun compromis, chaque logement a été pensé avec des finitions soignées et des matériaux de qualité : * Performance énergétique : Construction certifiée RE 2020 avec isolation thermique renforcée. * Confort thermique : Chauffage collectif raccordé au réseau de chaleur urbain et radiateurs sèche-serviettes dans les salles de bain. * Esthétique moderne : Carrelage grand format (45x45) dans les pièces de vie et parquet stratifié dans les chambres. * Praticité : Volets roulants électriques et appartements pré-équipés pour la domotique (gestion intelligente). Un Emplacement Stratégique Située dans une ville dynamique et chargée d'histoire, la résidence est le point de départ idéal pour toutes vos passions : * Activités nautiques sur le célèbre Lac de Serre-Ponçon. * Sports d'hiver et randonnées dans les massifs majestueux. * Vie locale riche : Ruelles pittoresques, commerces et événements culturels tout au long de l'année. A découvrir dans vos agences Sixième Avenue à Gap et Savines-le-Lac Copropriété de 124 lots - dont 44 lots habitation.(Pas de procédure en cours). Alexis DICHARRY (EI) Agent Commercial - Numéro RSAC : - .
* Honoraires à la charge du vendeur
Surface
45.18 m²
Pièces
2
Chambres
1
SDB
1
Détails du bien
- Mandat
- 1694
- Surface
- 45.18 m²
- Nb pièces
- 2
- Nb chambres
- 1
- NB étages
- 1
- Construction
- 2026
- Salle d'eau
- 1
- Nb WC
- 1
- Etat général
- Excellent
Performances énergétiques

